Witmarsum – De Terp 24
Kenmerken
Status
Vraagprijs
Oplevering
Energielabel
Bouwjaar
Inhoud
Woonoppervlakte
Aantal kamers
Aantal slaapkamers
Aantal badkamers
Perceeloppervlakte
Buitenruimte
Ligging tuin
Oppervlakte
Garage
Omschrijving
Aan het het open vaarwater gelegen 8-persoon recreatiewoning (woonoppervlak 118 m²).
Erg fraai gelegen op een schiereiland en een flink perceel grond (kadastraal 503 m²), met achtertuin op het zuidwesten. In directe verbinding met de Elfstedenroute en met vanuit zowel de woonkamer als de tuin een schitterend uitzicht over water en natuur.
Degelijk gebouwd in 2010 (gas-loos), met onder andere 4 slaapkamers, 2 badkamers en vloerverwarming op zowel de begane grond als de 1e verdieping en een eigen aanlegsteiger voor uw boot...
Indeling:
Begane grond: hal/entree, toilet, ruime watergerichte woonkamer (ca. 30 m²) met tuindeur, open keuken (ca. 5 m²) voorzien van inbouwapparatuur.
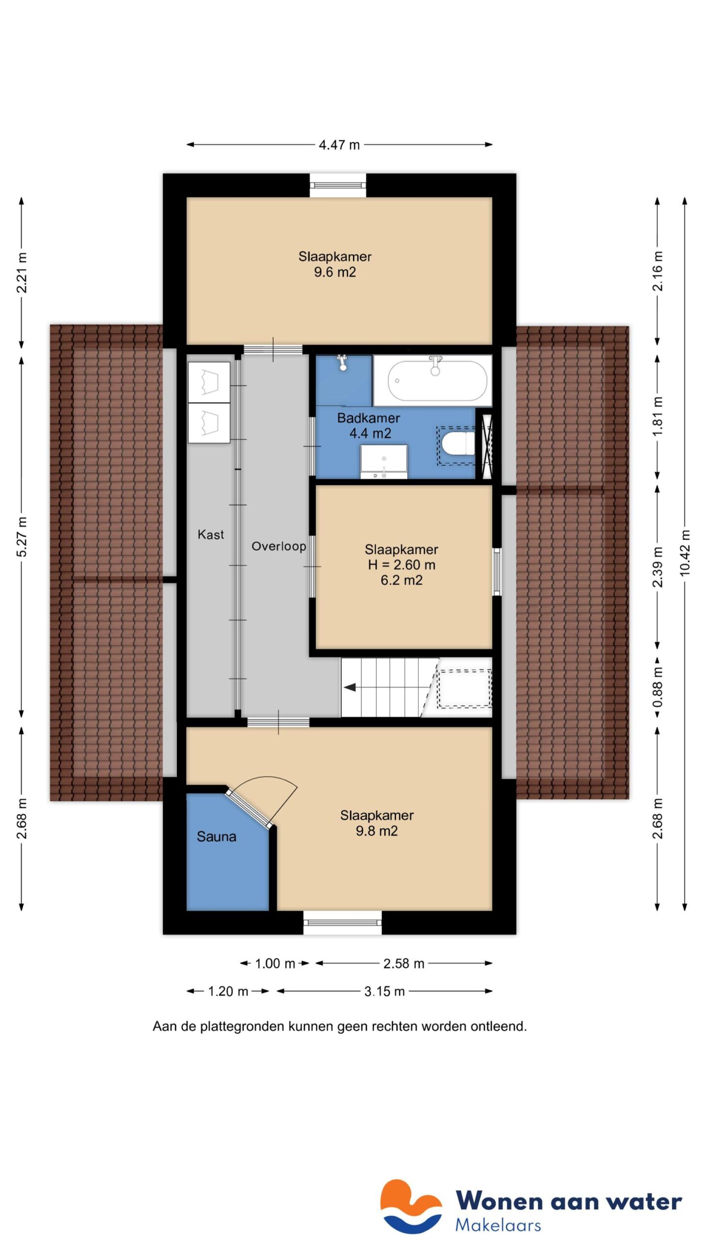
1e Verdieping: ruime overloop met kastenwand en wasmachine aansluiting, 3 slaapkamers, sauna en een 2e badkamer met ligbad, 3e toilet, douche en wastafel.
Overig:
* Perceelgrootte 503 m².
* Energielabel A+
* HR++ beglazing.
* Woonoppervlak 118 m².
* Bouwjaar 2010.
* Gas-loos recreëren.
* Vloerverwarming op de begane grond en 1e verdieping.
* Verwarming middels (aard) warmtepomp.
* Buitenschilderwerk uitgevoerd in 2021.
* Goede verhuurmogelijkheden (in eigen beheer).
* Jaarlijkse parkbijdrage € 2.200,- exclusief BTW.
* Gelegen op Landal Elfstedenhart.
Hart voor Friesland
De provincie van prachtige natuur, weidse vergezichten, water en rust. Het park ligt midden tussen Harlingen en Bolsward; twee van de Friese Elfsteden. In de directe omgeving bevinden zich prachtige steden en dorpjes met rijke historie. Wandel bijvo...
Aan het het open vaarwater gelegen 8-persoon recreatiewoning (woonoppervlak 118 m²).
Erg fraai gelegen op een schiereiland en een flink perceel grond (kadastraal 503 m²), met achtertuin op het zuidwesten. In directe verbinding met de Elfstedenroute en met vanuit zowel de woonkamer als de tuin een schitterend uitzicht over water en nat...
Aan het het open vaarwater gelegen 8-persoon recreatiewoning (woonoppervlak 118 m²).
Erg fraai gelegen op een schiereiland en een flink perceel grond (kadastraal 503 m²), met achtertuin op het zuidwesten. In directe verbinding met de Elfstedenroute en met vanuit zowel de woonkamer als de tuin een schitterend uitzicht over water en natuur.
Degelijk gebouwd in 2010 (gas-loos), met onder andere 4 slaapkamers, 2 badkamers en vloerverwarming op zowel de begane grond als de 1e verdieping en een eigen aanlegsteiger voor uw boot...
Indeling:
Begane grond: hal/entree, toilet, ruime watergerichte woonkamer (ca. 30 m²) met tuindeur, open keuken (ca. 5 m²) voorzien van inbouwapparatuur.
1e Verdieping: ruime overloop met kastenwand en wasmachine aansluiting, 3 slaapkamers, sauna en een 2e badkamer met ligbad, 3e toilet, douche en wastafel.
Overig:
* Perceelgrootte 503 m².
* Energielabel A+
* HR++ beglazing.
* Woonoppervlak 118 m².
* Bouwjaar 2010.
* Gas-loos recreëren.
* Vloerverwarming op de begane grond en 1e verdieping.
* Verwarming middels (aard) warmtepomp.
* Buitenschilderwerk uitgevoerd in 2021.
* Goede verhuurmogelijkheden (in eigen beheer).
* Jaarlijkse parkbijdrage € 2.200,- exclusief BTW.
* Gelegen op Landal Elfstedenhart.
Hart voor Friesland
De provincie van prachtige natuur, weidse vergezichten, water en rust. Het park ligt midden tussen Harlingen en Bolsward; twee van de Friese Elfsteden. In de directe omgeving bevinden zich prachtige steden en dorpjes met rijke historie. Wandel bijvoorbeeld door de historische binnenstad van Franeker, of bezoek het karakteristieke museumdorp Allingawier. Friesland kent vele fietsroutes. Adem tijdens uw fietstocht eens diep in en ervaar hoe zuiver de Friese lucht is. Of maak ’s avonds een wandeling en bekijk de Melkweg in de nauwelijks door licht verstoorde duisternis van Noordwest Friesland.
Interesse?
Heb je interesse in deze woning of wil je een bezichtiging inplannen? Wij helpen je graag."*" geeft vereiste velden aan
Video
Plattegrond













