Stavoren – Koeweg 44-32
Kenmerken
Status
Vraagprijs
Oplevering
Energielabel
Bouwjaar
Inhoud
Woonoppervlakte
Aantal kamers
Aantal slaapkamers
Aantal badkamers
Perceeloppervlakte
Buitenruimte
Ligging tuin
Oppervlakte
Garage
Omschrijving
Op zoek naar een bijzonder plekje om te ontsnappen aan de drukte van alledag?
Dit charmante, vrijstaande Tiny house (2-persoons) op een prachtige locatie op jachthaven De Roggebroek biedt het ultieme gevoel van vrijheid, rust en comfort. Direct aan het water en met uitzicht over de uitgestrekte weilanden van Friesland.
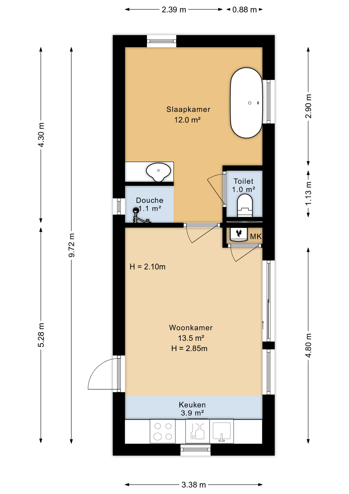
Het Tiny house heeft een woonoppervlakte van ca. 33 m² en is met oog voor detail ingericht en combineert modern comfort met een warme, sfeervolle uitstraling. De luxe slaapkamer beschikt over een vrijstaand ligbad met panoramisch uitzicht over de weilanden – een zeldzame plek waar ontspanning en natuur samenkomen.
Indeling
De woning beschikt over een lichte woonkamer (ca. 13,5 m²), die naadloos overloopt in de open keuken (3,9 m²), voorzien van een kookplaat, gootsteen en opbergruimte. Aan de achterzijde van de woning bevindt zich de royale slaapkamer (12 m²) met vrijstaand ligbad en weids uitzicht over de weilanden. Daarnaast is er een separate toiletruimte, een doucheruimte en een technische ruimte/meterkast (MK).
De woning is volledig gelijkvloers en slim ingedeeld voor maximaal comfort.
De Jachthaven:
Jachthaven de Roggebroek biedt een ideale uitvalsbasis voor watersporters, gezinnen en natuurliefhebbers. Met directe toegang tot het IJsselmeer, de Friese meren en de Waddenzee, is deze jachthaven perfect voor zowel korte uitstapjes als langere tochten.
De jachthaven beschikt over 200 vaste ligplaatsen, geschikt voor boten tot 15 meter lengte en een diepgang van maximaal 2,5 meter. Elke ligplaats is voorzien van een zijsteiger, 16 ampère stroo...
Op zoek naar een bijzonder plekje om te ontsnappen aan de drukte van alledag?
Dit charmante, vrijstaande Tiny house (2-persoons) op een prachtige locatie op jachthaven De Roggebroek biedt het ultieme gevoel van vrijheid, rust en comfort. Direct aan het water en met uitzicht over de uitgestrekte weilanden van Friesland.
Het Tiny hou...
Op zoek naar een bijzonder plekje om te ontsnappen aan de drukte van alledag?
Dit charmante, vrijstaande Tiny house (2-persoons) op een prachtige locatie op jachthaven De Roggebroek biedt het ultieme gevoel van vrijheid, rust en comfort. Direct aan het water en met uitzicht over de uitgestrekte weilanden van Friesland.
Het Tiny house heeft een woonoppervlakte van ca. 33 m² en is met oog voor detail ingericht en combineert modern comfort met een warme, sfeervolle uitstraling. De luxe slaapkamer beschikt over een vrijstaand ligbad met panoramisch uitzicht over de weilanden – een zeldzame plek waar ontspanning en natuur samenkomen.
Indeling
De woning beschikt over een lichte woonkamer (ca. 13,5 m²), die naadloos overloopt in de open keuken (3,9 m²), voorzien van een kookplaat, gootsteen en opbergruimte. Aan de achterzijde van de woning bevindt zich de royale slaapkamer (12 m²) met vrijstaand ligbad en weids uitzicht over de weilanden. Daarnaast is er een separate toiletruimte, een doucheruimte en een technische ruimte/meterkast (MK).
De woning is volledig gelijkvloers en slim ingedeeld voor maximaal comfort.
De Jachthaven:
Jachthaven de Roggebroek biedt een ideale uitvalsbasis voor watersporters, gezinnen en natuurliefhebbers. Met directe toegang tot het IJsselmeer, de Friese meren en de Waddenzee, is deze jachthaven perfect voor zowel korte uitstapjes als langere tochten.
De jachthaven beschikt over 200 vaste ligplaatsen, geschikt voor boten tot 15 meter lengte en een diepgang van maximaal 2,5 meter. Elke ligplaats is voorzien van een zijsteiger, 16 ampère stroomaansluiting en drinkwater. Voor onderhoud en opslag zijn er voorzieningen zoals een botenlift tot 20 ton, een mastenkraan en mogelijkheden voor zowel binnen- als buitenstalling.
Kinderen kunnen hier hun lol op. Er is een centraal gelegen speeltuin, een kabelbaan, trampoline, zandbak, glijbaan en diverse klim- en klautertoestellen te vinden. Ook is het mogelijk om kosteloos gebruik te maken van de aanwezige kano's en skelters.
Bijzonderheden:
* Vrijstaande Tiny house;
* 1 slaapkamer met vrijstaand ligbad en aparte douche en toilet;
* Woonoppervlakte ca. 33 m²
* Inhoud 130 m³;
* Perceeloppervlakte 261 m²;
* Ventilatie middels Duco ventilatie box P;
* Mogelijkheid om een ligplaats te huren in de haven;
* Het centrum van Stavoren ligt op 5 minuten fietsafstand;
* Woning wordt opgeleverd met alle inventaris;
* Oplevering in overleg nader te bepalen;
Interesse?
Heb je interesse in deze woning of wil je een bezichtiging inplannen? Wij helpen je graag."*" geeft vereiste velden aan
Video
Plattegrond











