Stavoren – Burgemeester Albertsstraat 18
Kenmerken
Status
Vraagprijs
Oplevering
Energielabel
Bouwjaar
Inhoud
Woonoppervlakte
Aantal kamers
Aantal slaapkamers
Aantal badkamers
Perceeloppervlakte
Buitenruimte
Ligging tuin
Oppervlakte
Garage
Omschrijving
Karakteristiek wonen aan klein open vaarwater, midden in het historische hart van de 11-stedenstad Stavoren!
Een bijzondere woning op een unieke plek! Deze karakteristieke woning uit circa 1920 beschikt over een zeer opvallende en fraaie voorgevel en ligt op een rustige woonlocatie in het oude centrum van Stavoren. Uniek is dat het gehele perceel, van de straat tot het einde van de diepe achtertuin, direct grenst aan het klein open vaarwater. De ligging aan klein vaarwater maakt het mogelijk om met een sloep of kano zo het water op te gaan.
De markante voorgevel is een echte blikvanger en kenmerkt zich door een klassieke bouwstijl met sierlijk metselwerk en verfijnde geveldetails. Dit geeft de woning een unieke, bijna monumentale uitstraling.
Binnen ademt de woning sfeer en authenticiteit. Denk aan hoge plafonds, paneeldeuren, en-suite deuren met glas-in-lood, lambrisering, een balkenplafond in de woonkamer en een mooie massief houten vloer. Deze karakteristieke elementen zijn op smaakvolle wijze gecombineerd met modern wooncomfort, waaronder een keurige, vernieuwde badkamer en een fijne (woon)keuken.
De diepe achtertuin is gelegen op het zuiden en biedt veel privacy en een vrij uitzicht, doordat deze grenst aan een open ruimte in eigendom van de gemeente Súdwest-Fryslân. Er is een groot terras direct achter de woning, ideaal voor lange zomeravonden, én een beschut zijterras waar u heerlijk uit de wind kunt zitten.
Kortom: een prachtige, sfeervolle woning op een uitzonderlijk mooie plek!
Koper dient er wel rekening mee te houden dat het buitenschilderwerk van de woning op kor...
Karakteristiek wonen aan klein open vaarwater, midden in het historische hart van de 11-stedenstad Stavoren!
Een bijzondere woning op een unieke plek! Deze karakteristieke woning uit circa 1920 beschikt over een zeer opvallende en fraaie voorgevel en ligt op een rustige woonlocatie in het oude centrum van Stavoren. Uniek is dat het gehele...
Karakteristiek wonen aan klein open vaarwater, midden in het historische hart van de 11-stedenstad Stavoren!
Een bijzondere woning op een unieke plek! Deze karakteristieke woning uit circa 1920 beschikt over een zeer opvallende en fraaie voorgevel en ligt op een rustige woonlocatie in het oude centrum van Stavoren. Uniek is dat het gehele perceel, van de straat tot het einde van de diepe achtertuin, direct grenst aan het klein open vaarwater. De ligging aan klein vaarwater maakt het mogelijk om met een sloep of kano zo het water op te gaan.
De markante voorgevel is een echte blikvanger en kenmerkt zich door een klassieke bouwstijl met sierlijk metselwerk en verfijnde geveldetails. Dit geeft de woning een unieke, bijna monumentale uitstraling.
Binnen ademt de woning sfeer en authenticiteit. Denk aan hoge plafonds, paneeldeuren, en-suite deuren met glas-in-lood, lambrisering, een balkenplafond in de woonkamer en een mooie massief houten vloer. Deze karakteristieke elementen zijn op smaakvolle wijze gecombineerd met modern wooncomfort, waaronder een keurige, vernieuwde badkamer en een fijne (woon)keuken.
De diepe achtertuin is gelegen op het zuiden en biedt veel privacy en een vrij uitzicht, doordat deze grenst aan een open ruimte in eigendom van de gemeente Súdwest-Fryslân. Er is een groot terras direct achter de woning, ideaal voor lange zomeravonden, én een beschut zijterras waar u heerlijk uit de wind kunt zitten.
Kortom: een prachtige, sfeervolle woning op een uitzonderlijk mooie plek!
Koper dient er wel rekening mee te houden dat het buitenschilderwerk van de woning op korte termijn aan onderhoud toe is.
Indeling:
Begane grond:
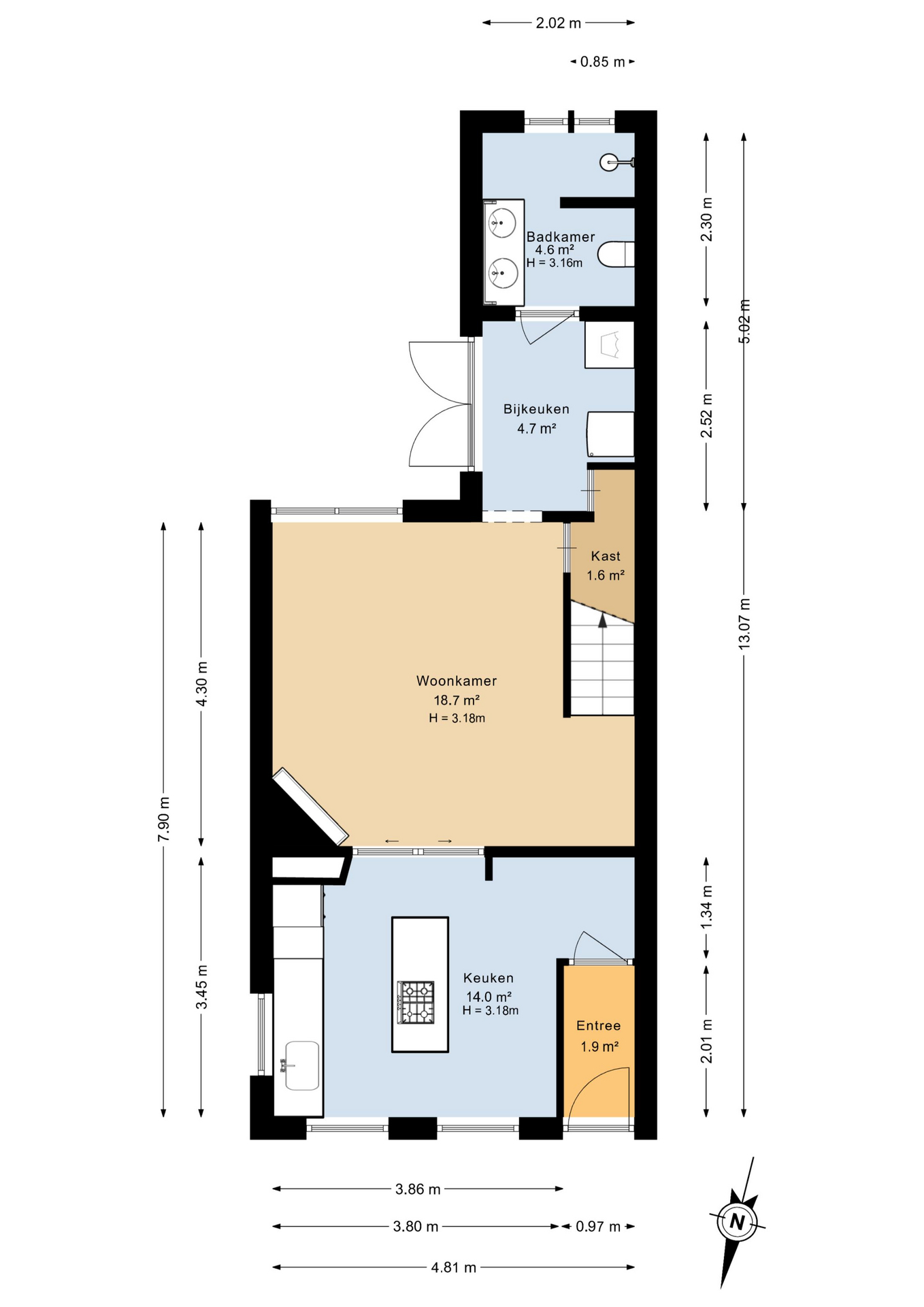
Hal/entree, royale woonkeuken (ca. 14 m²) met fraaie keukenopstelling, kookeiland en diverse inbouwapparatuur. Tuingerichte woonkamer (ca. 19 m²) met karaktervolle schouwpartij en open trap naar de eerste verdieping. In de aanbouw bevindt zich een ruime bijkeuken met wasmachineaansluiting en een compleet vernieuwde badkamer met toilet, inloopdouche en dubbele wastafel (meubel).
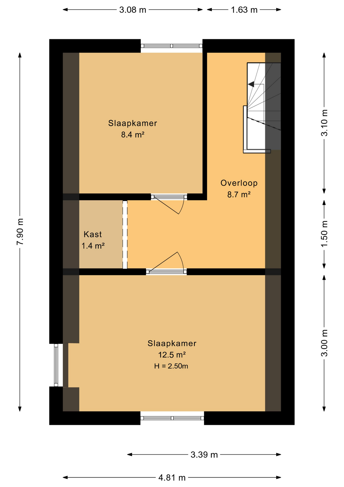
1e Verdieping: overloop met kastruimte en twee slaapkamers.
Bijzonderheden:
* Bouwjaar ca. 1920.
* Inhoud ca. 347 m³.
* Woonoppervlak ca. 81 m².
* Perceeloppervlak 179 m².
* Kozijnen deels uitgevoerd in hout en deels in kunststof.
* Gelegen aan klein open vaarwater.
* Voorgevel voorzien van nieuwe snijvoeg.
* Rustige ligging in het historische centrum.
* Mooie woning, op een prima plek!
Stavoren is een sfeervolle en historische Elfstedenstad aan het IJsselmeer met een compleet aanbod aan voorzieningen. In het compacte centrum zijn diverse winkels voor de dagelijkse boodschappen, gezellige horeca en een jachthaven aanwezig. Daarnaast beschikt Stavoren over een eigen treinstation met directe verbindingen richting Sneek en Leeuwarden. De ligging aan het water en de omliggende natuur maken het stadje zeer aantrekkelijk voor liefhebbers van rust, recreatie en watersport.
Interesse?
Heb je interesse in deze woning of wil je een bezichtiging inplannen? Wij helpen je graag."*" geeft vereiste velden aan
Video
Plattegrond












