Sneek – Pier Hylckeshof 6
Kenmerken
Status
Vraagprijs
Oplevering
Energielabel
Bouwjaar
Inhoud
Woonoppervlakte
Aantal kamers
Aantal slaapkamers
Aantal badkamers
Perceeloppervlakte
Buitenruimte
Ligging tuin
Oppervlakte
Garage
Omschrijving
Forse, vrijstaande villa, gelegen op voortreffelijke woonstand, direct aan open vaarwater, in de aantrekkelijke woonwijk Harinxmaland. Een zeer praktische gezinswoning, op een erg fijne plek om te wonen!
Deze robuuste woning is gebouwd in 2022 en is werkelijk in staat van nieuw! Gebouwd door Bouwbedrijf Bootsma te Tirns, volgens het Plannon bouwsysteem. Dat betekent optimale isolatie in combinatie met zeer weinig onderhoud, door de toepassing van kunststof kozijnen en polyester goten en boeidelen. Daarnaast zijn er 20 zonnepanelen aangebracht en wordt de woning verwarmd middels een luchtwarmtepomp. De woning is dan ook volledig gasloos uitgevoerd en beschikt over een prima energielabel A++. Lage energielasten en ook fijn om een extra gunstige hypotheekrente te verkrijgen!
De woning biedt ontzettend veel leefruimte door de forse afmetingen, de hoog opgetrokken gevels en de steile kap. Daardoor zijn er nu maar liefst 5 slaapkamers aanwezig, alle 5 royaal van afmeting. De woonkamer is heerlijk ruim met een oppervlak van 58 m². De gevels zijn opgetrokken in een donkerrode baksteen en het dakvlak is v.v. fraaie, zwart geglazuurde, keramische dakpannen. Een erg chique combinatie!
Naast de uitstekende isolerende voorzieningen, is de woning v.v. een hoogwaardig afwerkingsniveau. Zowel de begane grond als de verdieping is volledig v.v. vloerverwarming en afgewerkt met mooie pvc-vloeren. De 2e verdieping wordt verwarmd middels infrarood panelen. Alle binnendeuren uitgevoerd als zgn. stompe deuren en er is een oplaadpunt t.b.v. een elektrische auto. De gehele achtergevel van de woonkamer is bijna volledig...
Forse, vrijstaande villa, gelegen op voortreffelijke woonstand, direct aan open vaarwater, in de aantrekkelijke woonwijk Harinxmaland. Een zeer praktische gezinswoning, op een erg fijne plek om te wonen!
Deze robuuste woning is gebouwd in 2022 en is werkelijk in staat van nieuw! Gebouwd door Bouwbedrijf Bootsma te Tirns, volgens het Plan...
Forse, vrijstaande villa, gelegen op voortreffelijke woonstand, direct aan open vaarwater, in de aantrekkelijke woonwijk Harinxmaland. Een zeer praktische gezinswoning, op een erg fijne plek om te wonen!
Deze robuuste woning is gebouwd in 2022 en is werkelijk in staat van nieuw! Gebouwd door Bouwbedrijf Bootsma te Tirns, volgens het Plannon bouwsysteem. Dat betekent optimale isolatie in combinatie met zeer weinig onderhoud, door de toepassing van kunststof kozijnen en polyester goten en boeidelen. Daarnaast zijn er 20 zonnepanelen aangebracht en wordt de woning verwarmd middels een luchtwarmtepomp. De woning is dan ook volledig gasloos uitgevoerd en beschikt over een prima energielabel A++. Lage energielasten en ook fijn om een extra gunstige hypotheekrente te verkrijgen!
De woning biedt ontzettend veel leefruimte door de forse afmetingen, de hoog opgetrokken gevels en de steile kap. Daardoor zijn er nu maar liefst 5 slaapkamers aanwezig, alle 5 royaal van afmeting. De woonkamer is heerlijk ruim met een oppervlak van 58 m². De gevels zijn opgetrokken in een donkerrode baksteen en het dakvlak is v.v. fraaie, zwart geglazuurde, keramische dakpannen. Een erg chique combinatie!
Naast de uitstekende isolerende voorzieningen, is de woning v.v. een hoogwaardig afwerkingsniveau. Zowel de begane grond als de verdieping is volledig v.v. vloerverwarming en afgewerkt met mooie pvc-vloeren. De 2e verdieping wordt verwarmd middels infrarood panelen. Alle binnendeuren uitgevoerd als zgn. stompe deuren en er is een oplaadpunt t.b.v. een elektrische auto. De gehele achtergevel van de woonkamer is bijna volledig in glas uitgevoerd en o.a. v.v. 2 brede schuifpuien, waardoor het contact met de natuur en het vaarwater optimaal beleefd wordt! Ook is er elektrisch bedienbare zonwering aangebracht. En vanzelfsprekend is er een zeer uitgebreide keukenopstelling aanwezig, alsmede fraai sanitair.
De locatie is echt bijzonder. Rustig gelegen aan een doodlopende straat en tevens aan de buitenrand van Harinxmaland, waardoor men aan de achterzijde over veel privacy beschikt. Je kijkt uit op het water en openbaar groen en dus geen inkijk van achterburen. De achtertuin is praktisch aangelegd en volledig afgesloten middels een degelijk hekwerk, vanwege de hond. De tuin is mooi ruim en gelegen op het westen, waardoor men tot 's avonds laat over de zon beschikt. Aan de straatzijde is veel parkeergelegenheid op eigen erf gerealiseerd en is hier het oplaadpunt voor een elektrische auto geplaatst.
De totale oeverlengte bedraagt bijna 19 meter en is over de gehele lengte v.v. een uiterst solide, stalen damwand-/walbeschoeiing. Voldoende ruimte derhalve voor het aanmeren van een flinke sloep. Vanaf hier kun je heerlijk varen richting de Zwette en via de Oudvaart is vervolgens het gehele Friese merengebied uitstekend bereikbaar. De maximale doorvaarthoogte bedraagt ca. 2.50 meter.
Indeling:
Hal/entree met garderoberuimte en toilet, U-vormige woonkamer (ca. 58 m²) met veel raampartijen en dus ook veel lichtinval, open keuken v.v. luxe keukenopstelling met veel inbouwapparatuur, aangebouwde geïsoleerde garage/berging.
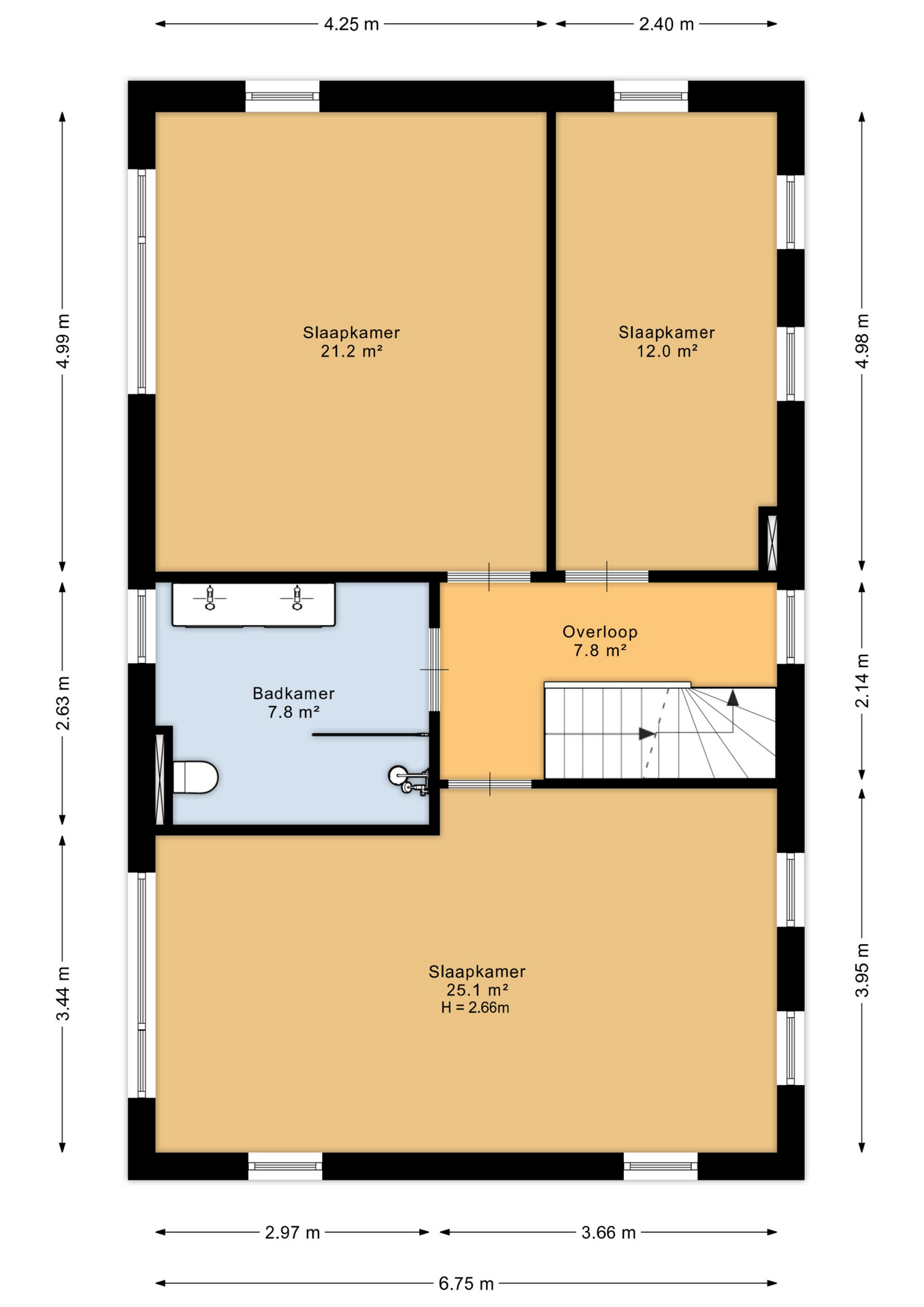
1e verdieping:
Overloop, erg ruime ouderslaapkamer (ca. 25 m²), 2e slaapkamer ook fors uitgevoerd (ca. 21 m²), 3e slaapkamer (ca. 12 m²) thans in gebruik als werkkamer, flinke badkamer v.v. 2e toilet, dubbele wastafel en inloopdouche.
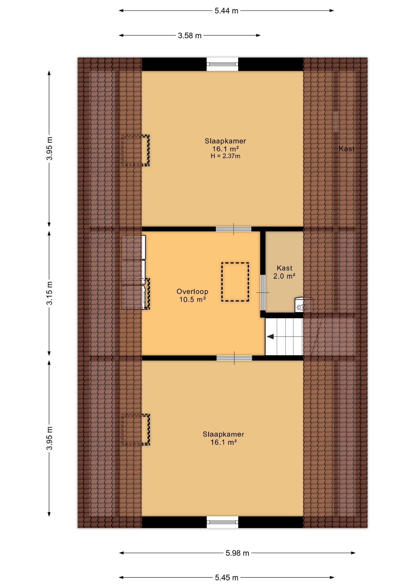
2e verdieping:
Overloop/wasruimte met grote kast, slaapkamer 4 en 5, beide ca. 16 m² groot.
3e verdieping:
Vliering.
Bijzonderheden:
* Bouwjaar 2022.
* Inhoud woning ca. 775 m³.
* Woonoppervlak ca. 201 m².
* Perceelgrootte 505 m².
* Energielabel A++.
* Wonen aan water.
* Heerlijke gezinswoning!
Interesse?
Heb je interesse in deze woning of wil je een bezichtiging inplannen? Wij helpen je graag."*" geeft vereiste velden aan
Video
Plattegrond















