Leeuwarden – Staniastate 13
Kenmerken
Status
Vraagprijs
Oplevering
Energielabel
Bouwjaar
Inhoud
Woonoppervlakte
Aantal kamers
Aantal slaapkamers
Aantal badkamers
Perceeloppervlakte
Buitenruimte
Ligging tuin
Oppervlakte
Garage
Omschrijving
Deze goed onderhouden hoekwoning met eigen oprit ligt op een prachtige en rustige locatie aan vaarwater in Camminghaburen. Met 111 m2 woonoppervlak, vier slaapkamers, een ruim 17 meter diepe tuin en een onderhoudsvriendelijke afwerking, is dit een ideale gezinswoning waar comfort en ligging perfect samenkomen.
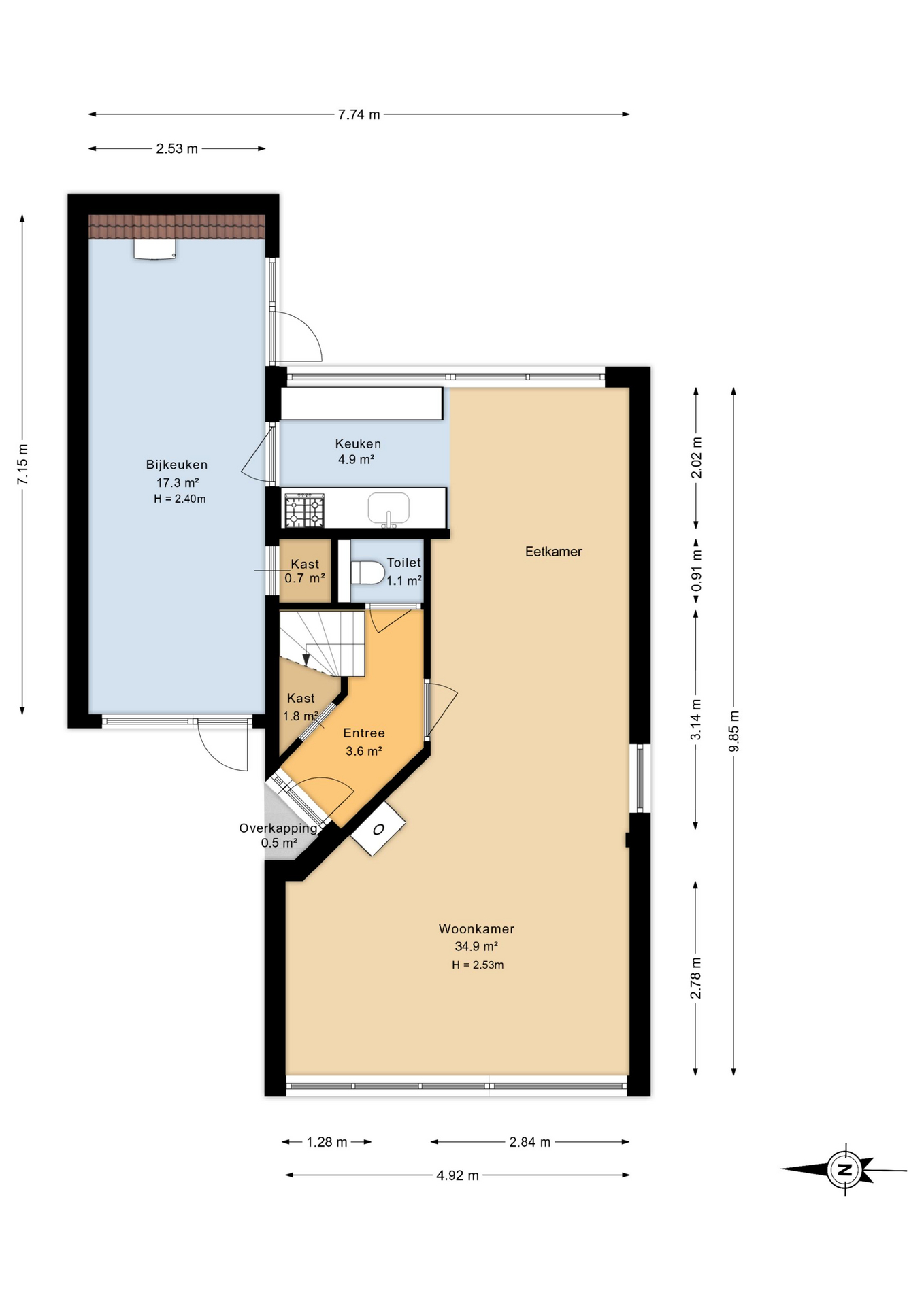
BEGANE GROND
De oprit biedt toegang tot de ruime berging en de entree van de woning. In de hal vind je een praktische kast, de trap naar de eerste verdieping, het toilet en de deur naar de woonkamer.
De woonkamer is bijna vijf meter breed en ligt op het westen, waardoor je hier volop geniet van het middag en avondlicht. De houtkachel zorgt voor extra sfeer en warmte. Aan de achterzijde bevindt zich de eethoek met een grote schuifpui naar de tuin, waardoor binnen en buiten mooi in elkaar overlopen. De open keuken uit 2016 is van alle gemakken voorzien en vormt een fijne plek in huis. Aansluitend is er een royale bijkeuken/berging met extra bergruimte, witgoedaansluiting en een praktische werkplek. Vanuit hier is toegang tot de achtertuin, wat tevens fungeert als achterom.
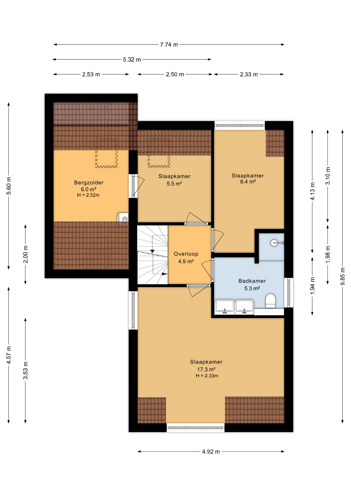
EERSTE VERDIEPING
De overloop geeft toegang tot drie slaapkamers. Aan de voorzijde bevindt zich een ruime kamer over de gehele breedte van de woning. Aan de achterzijde liggen nog twee slaapkamers, waarvan één toegang biedt tot een ruime bergzolder waar ook de cv ketel uit 2025 is geplaatst. De badkamer uit 2011 is compleet uitgevoerd met een dubbele wastafel, tweede toilet en douche. Via een vaste trap bereik je de tweede verdieping.
TWEEDE VERDIEPING
Hier kom je op een overloop met toegang tot de v...
Deze goed onderhouden hoekwoning met eigen oprit ligt op een prachtige en rustige locatie aan vaarwater in Camminghaburen. Met 111 m2 woonoppervlak, vier slaapkamers, een ruim 17 meter diepe tuin en een onderhoudsvriendelijke afwerking, is dit een ideale gezinswoning waar comfort en ligging perfect samenkomen.
BEGANE GROND
De oprit ...
Deze goed onderhouden hoekwoning met eigen oprit ligt op een prachtige en rustige locatie aan vaarwater in Camminghaburen. Met 111 m2 woonoppervlak, vier slaapkamers, een ruim 17 meter diepe tuin en een onderhoudsvriendelijke afwerking, is dit een ideale gezinswoning waar comfort en ligging perfect samenkomen.
BEGANE GROND
De oprit biedt toegang tot de ruime berging en de entree van de woning. In de hal vind je een praktische kast, de trap naar de eerste verdieping, het toilet en de deur naar de woonkamer.
De woonkamer is bijna vijf meter breed en ligt op het westen, waardoor je hier volop geniet van het middag en avondlicht. De houtkachel zorgt voor extra sfeer en warmte. Aan de achterzijde bevindt zich de eethoek met een grote schuifpui naar de tuin, waardoor binnen en buiten mooi in elkaar overlopen. De open keuken uit 2016 is van alle gemakken voorzien en vormt een fijne plek in huis. Aansluitend is er een royale bijkeuken/berging met extra bergruimte, witgoedaansluiting en een praktische werkplek. Vanuit hier is toegang tot de achtertuin, wat tevens fungeert als achterom.
EERSTE VERDIEPING
De overloop geeft toegang tot drie slaapkamers. Aan de voorzijde bevindt zich een ruime kamer over de gehele breedte van de woning. Aan de achterzijde liggen nog twee slaapkamers, waarvan één toegang biedt tot een ruime bergzolder waar ook de cv ketel uit 2025 is geplaatst. De badkamer uit 2011 is compleet uitgevoerd met een dubbele wastafel, tweede toilet en douche. Via een vaste trap bereik je de tweede verdieping.
TWEEDE VERDIEPING
Hier kom je op een overloop met toegang tot de vierde slaapkamer. Deze kamer beschikt over eigen kastruimte en extra bergruimte achter de knieschotten, wat zorgt voor een praktische en nette indeling.
TUIN
De achtertuin ligt op het oosten en is verzorgd aangelegd. Met een diepte van ruim 17 meter en directe ligging aan open vaarwater is dit een heerlijke plek voor liefhebbers van buitenleven. Er is ruimte voor een sloepje en dankzij de hoekligging profiteer je van een gunstige zonligging. Er is altijd wel een plek in de zon of juist in de schaduw te vinden.
OMGEVING
De woning ligt aan een rustige straat in Camminghaburen, een populaire en groene wijk in het noorden van Leeuwarden. Voorzieningen zoals winkels, scholen, sportverenigingen en openbaar vervoer bevinden zich op korte afstand. Het treinstation van Camminghaburen is dichtbij en ook de uitvalswegen richting Dokkum, Groningen en Heerenveen zijn snel bereikbaar. De combinatie van water, groen en rust maakt dit een bijzonder fijne woonplek voor jong en oud.
BIJZONDERHEDEN
+ 111 m2 woonoppervlak;
+ 4 slaapkamers;
+ Energielabel C;
+ Veel opbergruimte;
+ Bijna volledig in het kunststof
+ Zonnige tuin op het oosten;
+ Op rustige locatie aan vaarwater.
Disclaimer
Deze informatie is door ons met de nodige zorgvuldigheid samengesteld. Onzerzijds wordt echter geen enkele aansprakelijkheid aanvaard voor enige onvolledigheid, onjuistheid of anderszins, dan wel de gevolgen daarvan. Alle opgegeven maten en oppervlakten zijn indicatief.
Toelichtingsclausule NEN2580
De Meetinstructie is gebaseerd op de NEN2580. De Meetinstructie is bedoeld om een meer eenduidige manier van meten toe te passen voor het geven van een indicatie van de gebruiksoppervlakte. De Meetinstructie sluit verschillen in meetuitkomsten niet volledig uit, door bijvoorbeeld interpretatieverschillen, afrondingen of beperkingen bij het uitvoeren van de meting.
Interesse?
Heb je interesse in deze woning of wil je een bezichtiging inplannen? Wij helpen je graag."*" geeft vereiste velden aan
Video
Plattegrond













