Leeuwarden – Groningerstraatweg 363g
Kenmerken
Status
Vraagprijs
Oplevering
Energielabel
Bouwjaar
Inhoud
Woonoppervlakte
Aantal kamers
Aantal slaapkamers
Aantal badkamers
Perceeloppervlakte
Buitenruimte
Ligging tuin
Oppervlakte
Garage
Omschrijving
Nieuwbouwwoning aan open vaarwater, duurzaam, ruim en met een vleugje luxe. Een plek om verliefd op te worden: een gloednieuwe woning van ca. 160 m², direct gelegen aan open vaarwater. Deze instapklare woning uit 2023 combineert energiezuinig wonen (energielabel A+++) met comfort en een hoogwaardige afwerking. Dankzij slimme verbeteringen en extra voorzieningen is dit huis helemaal klaar voor de toekomst, jij hoeft alleen nog maar de verhuisdozen uit te pakken.
De ligging aan het water geeft deze woning een unieke charme: ontbijt in de ochtendzon, een drankje op de steiger of even wegvaren met de boot, hier geniet je elke dag van een vakantiegevoel. Met de royale woonoppervlakte, de praktische indeling en de luxe details is dit een thuis dat moeiteloos ruimte biedt voor gezin, werk en ontspanning.
BEGANE GROND
Bij aankomst parkeer je je auto op het naastgelegen terrein. Aan de voorzijde bevindt zich een ruime, goed geïsoleerde berging met genoeg plek voor meerdere fietsen en extra opslag.
De entree verwelkomt je in een lichte hal met meterkast, modern toilet met fontein en een doorgang naar de berging. Vervolgens betreed je de royale woonkamer met open keuken (ca. 55 m²), het hart van het huis. Dankzij vloerverwarming en de grote raampartijen aan de tuinzijde voelt deze ruimte licht en behaaglijk. Via dubbele openslaande deuren stap je zo de zonnige achtertuin in.
De luxe keuken met kookeiland nodigt uit tot uitgebreid koken. Voorzien van alle denkbare inbouwapparatuur, waaronder een vaatwasser, combi-oven, ingebouwde koffiemachine en een inductiekookplaat met geïntegreerde afzuigin...
Nieuwbouwwoning aan open vaarwater, duurzaam, ruim en met een vleugje luxe. Een plek om verliefd op te worden: een gloednieuwe woning van ca. 160 m², direct gelegen aan open vaarwater. Deze instapklare woning uit 2023 combineert energiezuinig wonen (energielabel A+++) met comfort en een hoogwaardige afwerking. Dankzij slimme verbeteringen en ex...
Nieuwbouwwoning aan open vaarwater, duurzaam, ruim en met een vleugje luxe. Een plek om verliefd op te worden: een gloednieuwe woning van ca. 160 m², direct gelegen aan open vaarwater. Deze instapklare woning uit 2023 combineert energiezuinig wonen (energielabel A+++) met comfort en een hoogwaardige afwerking. Dankzij slimme verbeteringen en extra voorzieningen is dit huis helemaal klaar voor de toekomst, jij hoeft alleen nog maar de verhuisdozen uit te pakken.
De ligging aan het water geeft deze woning een unieke charme: ontbijt in de ochtendzon, een drankje op de steiger of even wegvaren met de boot, hier geniet je elke dag van een vakantiegevoel. Met de royale woonoppervlakte, de praktische indeling en de luxe details is dit een thuis dat moeiteloos ruimte biedt voor gezin, werk en ontspanning.
BEGANE GROND
Bij aankomst parkeer je je auto op het naastgelegen terrein. Aan de voorzijde bevindt zich een ruime, goed geïsoleerde berging met genoeg plek voor meerdere fietsen en extra opslag.
De entree verwelkomt je in een lichte hal met meterkast, modern toilet met fontein en een doorgang naar de berging. Vervolgens betreed je de royale woonkamer met open keuken (ca. 55 m²), het hart van het huis. Dankzij vloerverwarming en de grote raampartijen aan de tuinzijde voelt deze ruimte licht en behaaglijk. Via dubbele openslaande deuren stap je zo de zonnige achtertuin in.
De luxe keuken met kookeiland nodigt uit tot uitgebreid koken. Voorzien van alle denkbare inbouwapparatuur, waaronder een vaatwasser, combi-oven, ingebouwde koffiemachine en een inductiekookplaat met geïntegreerde afzuiging, én afgewerkt met een chic werkblad, is dit een plek waar functionaliteit en stijl elkaar ontmoeten.
EERSTE VERDIEPING
De vaste trap brengt je naar de eerste verdieping, waar zich drie comfortabele slaapkamers bevinden. De badkamer straalt pure wellness uit: een tweede toilet, vrijstaand ligbad, wastafel met meubel en een ruime inloopdouche zorgen voor dagelijks comfort en verwennerij.
TWEEDE VERDIEPING
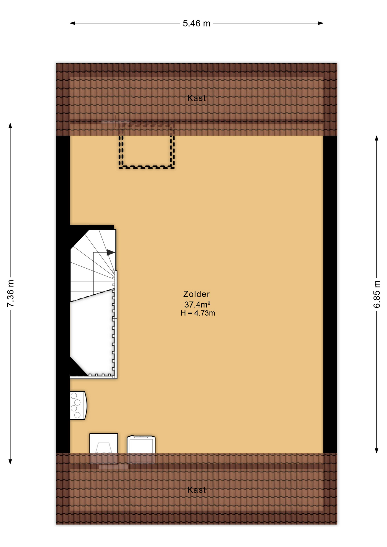
De zolderverdieping beslaat maar liefst 37 m² en vormt een groot, blanco canvas om naar eigen wens in te delen. Twee extra slaapkamers, een hobbyruimte of een inspirerende werkplek, alles is hier nog mogelijk met een nokhoogte van 4,73m. De ruimte is uitstekend geïsoleerd en voorzien van witgoedaansluiting, mechanische ventilatie, de cv-ketel én de omvormer voor de zonnepanelen (allemaal uit 2023). Een toekomstbestendige verdieping die volop kansen biedt.
BUITEN
Gelegen aan het open vaarwater is dit een heerlijke plek om te genieten van rust, ruimte en het buitenleven. De achtertuin sluit naadloos aan op de woonkamer en is ingericht met grote terrastegels die elegant overgaan in groene grasstroken. Deze leiden je vanzelf naar de eigen steiger, waar je direct aan het water kunt ontspannen of aan boord kunt stappen. Ondanks de ligging op het noorden profiteer je hier de hele dag van de zon én van het weidse uitzicht over het water.
BIJZONDERHEDEN
+ 157 m2 woonoppervlak;
+ Waterontharder aanwezig;
+ Volledig geïsoleerd;
+ Centrale ligging;
+ Energielabel A+++;
+ Aan open vaarwater gelegen;
+ 3 slaapkamers met grote tweede verdieping.
Disclaimer
Deze informatie is door ons met de nodige zorgvuldigheid samengesteld. Onzerzijds wordt echter geen enkele aansprakelijkheid aanvaard voor enige onvolledigheid, onjuistheid of anderszins, dan wel de gevolgen daarvan. Alle opgegeven maten en oppervlakten zijn indicatief.
Toelichtingsclausule NEN2580
De Meetinstructie is gebaseerd op de NEN2580. De Meetinstructie is bedoeld om een meer eenduidige manier van meten toe te passen voor het geven van een indicatie van de gebruiksoppervlakte. De Meetinstructie sluit verschillen in meetuitkomsten niet volledig uit, door bijvoorbeeld interpretatieverschillen, afrondingen of beperkingen bij het uitvoeren van de meting.
Interesse?
Heb je interesse in deze woning of wil je een bezichtiging inplannen? Wij helpen je graag."*" geeft vereiste velden aan
Video
Plattegrond

















