Franeker – Dyksfeart 21
Kenmerken
Status
Vraagprijs
Oplevering
Energielabel
Bouwjaar
Inhoud
Woonoppervlakte
Aantal kamers
Aantal slaapkamers
Aantal badkamers
Perceeloppervlakte
Buitenruimte
Ligging tuin
Oppervlakte
Garage
Omschrijving
Op een van de sfeervolle schiereilanden van de waterrijke Elfstedenwijk in Franeker-Zuid ligt deze moderne en uitstekend onderhouden 2/1 kapwoning met uitpandige bijkeuken, garage en royale veranda.
De woning is prachtig gesitueerd op een perceel van maar liefst 380 m² eigen grond en water, met de achtertuin op het zuiden, ideaal voor zonliefhebbers. Dankzij de eigen aanlegsteiger van ruim 10 meter geniet u hier van directe toegang tot het open vaarwater: vaar zo de Friese wateren op vanuit uw eigen tuin.
Binnen treft u een licht en eigentijds interieur met veel leefruimte. De verlengde woonkamer en keuken aan de achterzijde biedt een heerlijke plek om te koken en te borrelen met uitzicht op het water. Op de eerste verdieping bevinden zich twee ruime slaapkamers en een moderne, complete badkamer. De tweede verdieping, bereikbaar via een vaste trap, biedt nog eens twee extra (slaap)kamers.
De woning, gebouwd in 2016, combineert een strakke afwerking met comfort en duurzaamheid. Met een woonoppervlak van 152 m² en de unieke ligging aan het water vormt dit geheel een prachtig en compleet woonensemble.
Kortom: een modern, sfeervol en instapklaar huis op een toplocatie waar elke dag voelt als vakantie.
Indeling:
Begane grond: hal/entree, toilet (hangcloset), ruime woonkamer met vloerverwarming, veel lichtinval, moderne open keuken met kookeiland en voorzien van alle benodigde inbouwapparatuur en schuifpui (de woonkamer en keuken zijn samen maar liefst ca. 61 m² groot). Bijkeuken met wasmachineaansluiting en toegang tot de geïsoleerde en verwarmde (vloerverwarming) garage.
1e...
Op een van de sfeervolle schiereilanden van de waterrijke Elfstedenwijk in Franeker-Zuid ligt deze moderne en uitstekend onderhouden 2/1 kapwoning met uitpandige bijkeuken, garage en royale veranda.
De woning is prachtig gesitueerd op een perceel van maar liefst 380 m² eigen grond en water, met de achtertuin op het zuiden, ideaal voor zo...
Op een van de sfeervolle schiereilanden van de waterrijke Elfstedenwijk in Franeker-Zuid ligt deze moderne en uitstekend onderhouden 2/1 kapwoning met uitpandige bijkeuken, garage en royale veranda.
De woning is prachtig gesitueerd op een perceel van maar liefst 380 m² eigen grond en water, met de achtertuin op het zuiden, ideaal voor zonliefhebbers. Dankzij de eigen aanlegsteiger van ruim 10 meter geniet u hier van directe toegang tot het open vaarwater: vaar zo de Friese wateren op vanuit uw eigen tuin.
Binnen treft u een licht en eigentijds interieur met veel leefruimte. De verlengde woonkamer en keuken aan de achterzijde biedt een heerlijke plek om te koken en te borrelen met uitzicht op het water. Op de eerste verdieping bevinden zich twee ruime slaapkamers en een moderne, complete badkamer. De tweede verdieping, bereikbaar via een vaste trap, biedt nog eens twee extra (slaap)kamers.
De woning, gebouwd in 2016, combineert een strakke afwerking met comfort en duurzaamheid. Met een woonoppervlak van 152 m² en de unieke ligging aan het water vormt dit geheel een prachtig en compleet woonensemble.
Kortom: een modern, sfeervol en instapklaar huis op een toplocatie waar elke dag voelt als vakantie.
Indeling:
Begane grond: hal/entree, toilet (hangcloset), ruime woonkamer met vloerverwarming, veel lichtinval, moderne open keuken met kookeiland en voorzien van alle benodigde inbouwapparatuur en schuifpui (de woonkamer en keuken zijn samen maar liefst ca. 61 m² groot). Bijkeuken met wasmachineaansluiting en toegang tot de geïsoleerde en verwarmde (vloerverwarming) garage.
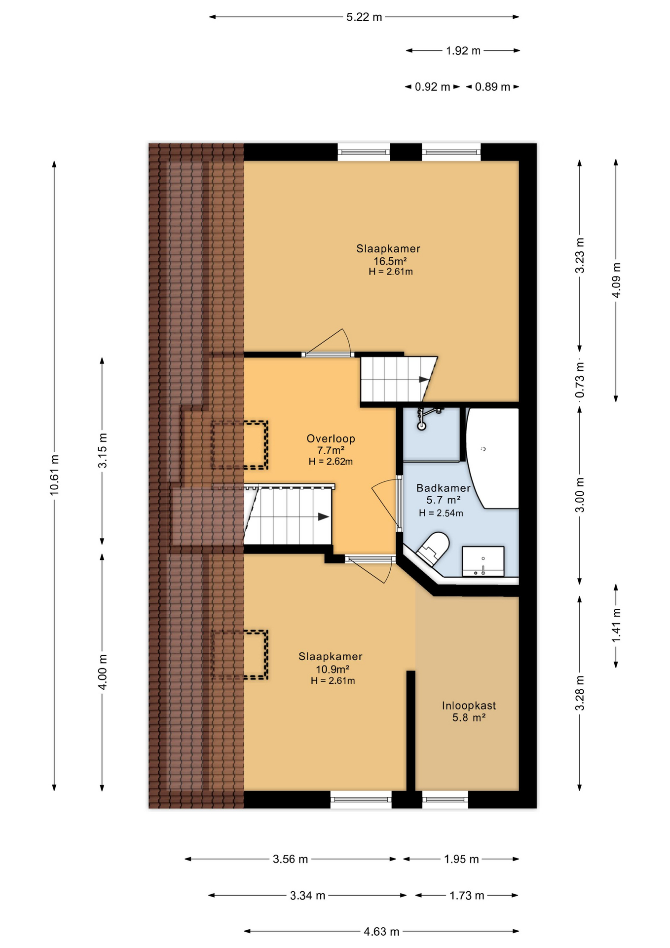
1e Verdieping: overloop, 2 ruime slaapkamers (voorheen 3), waarbij de grootste slaapkamer is voorzien van een inloopkast en een mooie badkamer met vloerverwarming, 2e toilet, douche, ligbad en dubbele wastafel (meubel).
2e Verdieping: via vaste trap bereikbaar, overloop en 3e en 4e (slaap) kamer.
Overig:
* Bouwjaar 2016.
* Woonoppervlak 152 m².
* 16 zonnepanelen geplaatst in 2021.
* Gehele begane grond (incl. garage) + badkamer voorzien van vloerverwarming.
* Perceelgrootte 380 m² (inclusief strook water).
* Buitenschilderwerk uitgevoerd in 2023.
* Volledig en uitstekend geïsoleerde woning.
* Energielabel A+
* Triple beglazing (m.u.v. dakramen).
* 1e Verdieping voorzien van pvc-vloer.
* In 2021 zijn 3 extra dakramen geplaatst.
* Kunststof dakgoten.
* Waterontharder aanwezig.
* Garage en bijkeuken uitgevoerd in Werzalith.
Franeker is direct gelegen aan de snelweg Leeuwarden-Harlingen (A31) en heeft intussen meer dan 13.000 inwoners. Je woont er bij het water, omgeven door groen. Toch ben je in een paar minuten in de binnenstad van Franeker, met het oude stadhuis, de winkels, supermarkt en terrasjes.
Interesse?
Heb je interesse in deze woning of wil je een bezichtiging inplannen? Wij helpen je graag."*" geeft vereiste velden aan
Video
Plattegrond

















